Passer la navigation
Projets
Concours
A propos
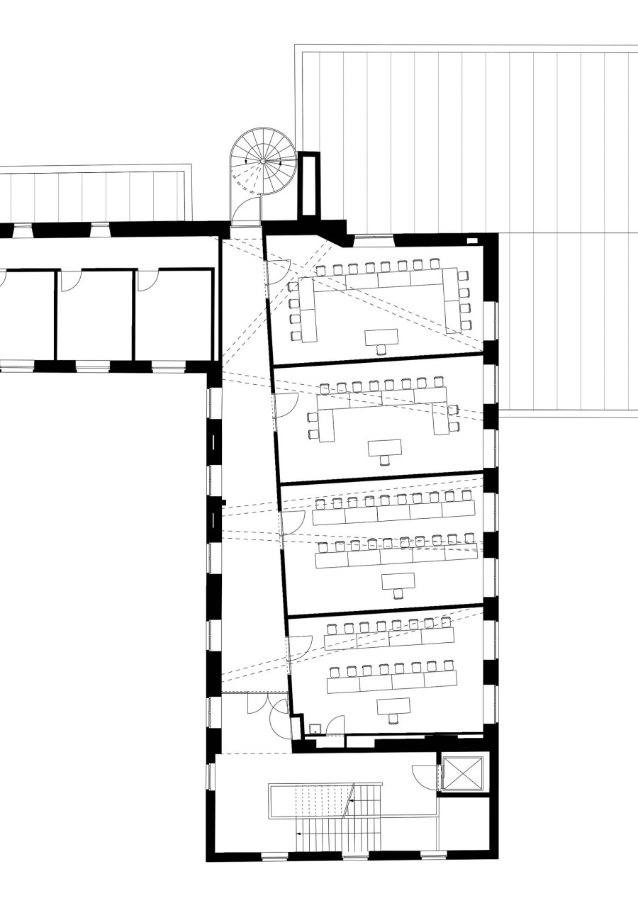
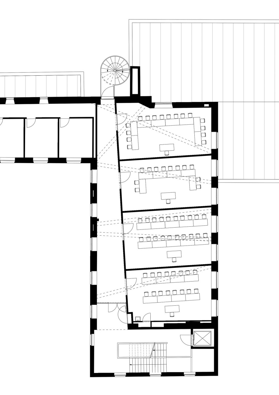
URSULE
Namur
Projet réalisé
Institut Sainte-Ursule
Bureau d'études : JZH & Partners
Photographe : Julien Forthomme
Maître de l'ouvrage : ASBL Institut Sainte-Ursule
Projet précédent
Projet suivant