Passer la navigation
Projets
Concours
A propos
STIMONT
Ottignies
Travaux en cours
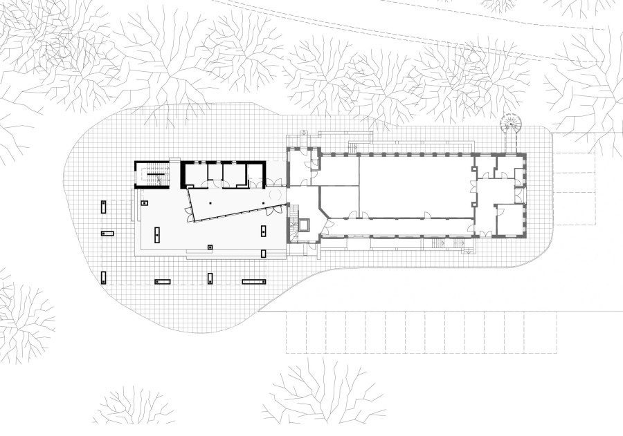
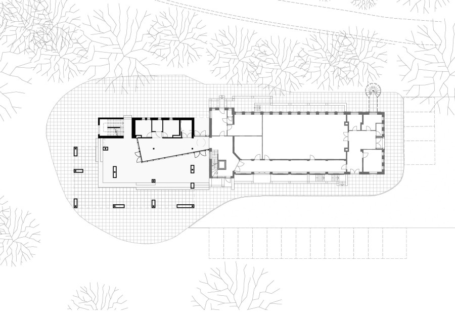
Aile "Stimont" au Collège du Christ-Roi
Maître de l'ouvrage : ASBL Collège du Christ-Roi
Projet précédent
Projet suivant