Passer la navigation
Projets
Concours
A propos
GP
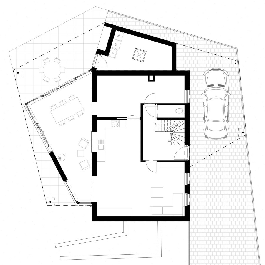
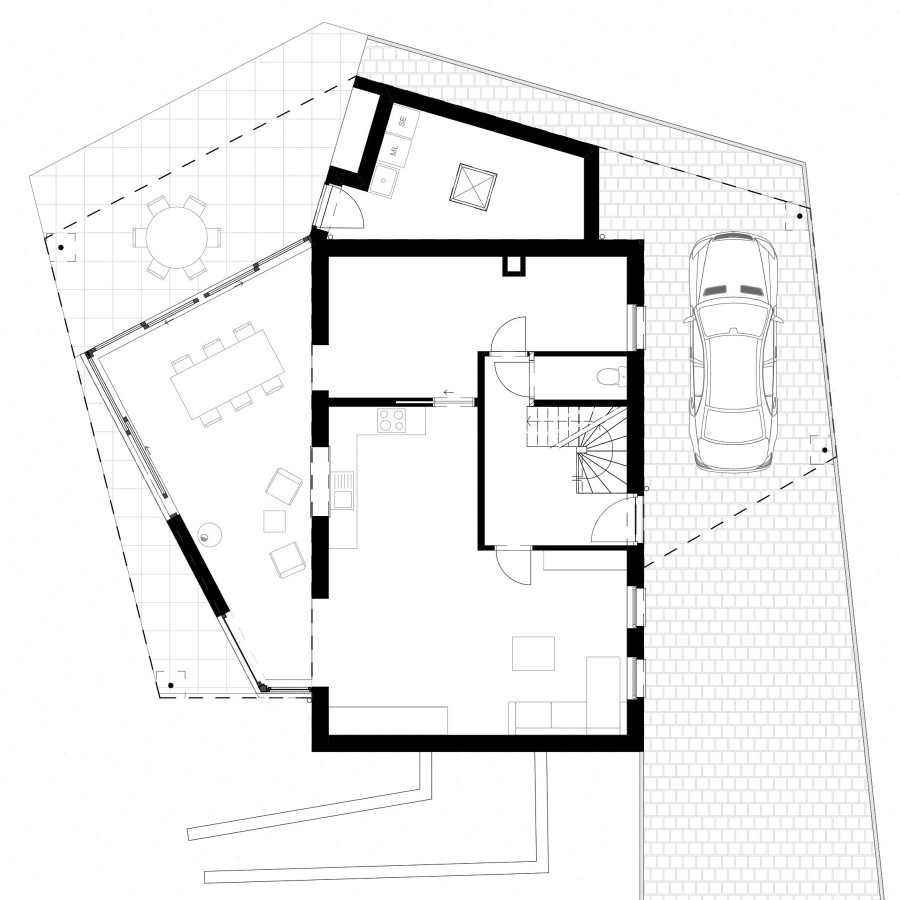
Vitrival
Projet réalisé
Habitation privée
Bureau d'études : Bureau Aerts
Photographe : Julien Forthomme
Projet précédent
Projet suivant