Passer la navigation
Projets
Concours
A propos
EVREHAILLES
Evrehailles
Projet réalisé
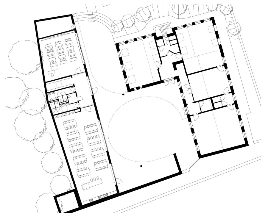
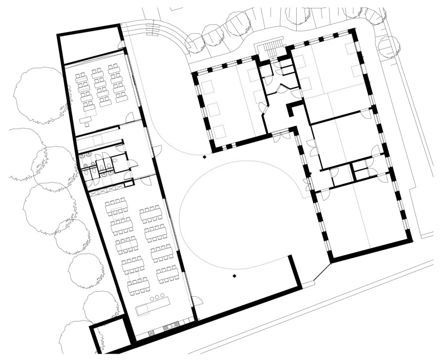
Ecole communale d'Evrehailles
Bureaux d'études : Stabili.D, TS-Ecoconcept
Photographe : Julien Forthomme
Maître de l'ouvrage : Commune d'Yvoir
Projet précédent
Projet suivant